Téléphone:
(514) 792-3533
(855) 585-5333
Commencez à taper & appuyez sur "Entrée" ou "ESC" pour fermer
fr
Français
Anglais
Accueil
Produits
Nos produits
Convertisseurs
Profilés d'aluminium
Accessoires d'aluminium
Embouts
Diffuseurs
Bandes de DEL
Raccords rapides
Supports
Luminaires assemblés
Contrôleur
Canopées
Fils
Croquis d'assemblage
Demande de soumission
Services
Nos services
Nos formations
Portofolio
Portefeuille de projets
Idées et réalisations
Showroom Virtuel
Clide
Connexion
Inscription
Connexion
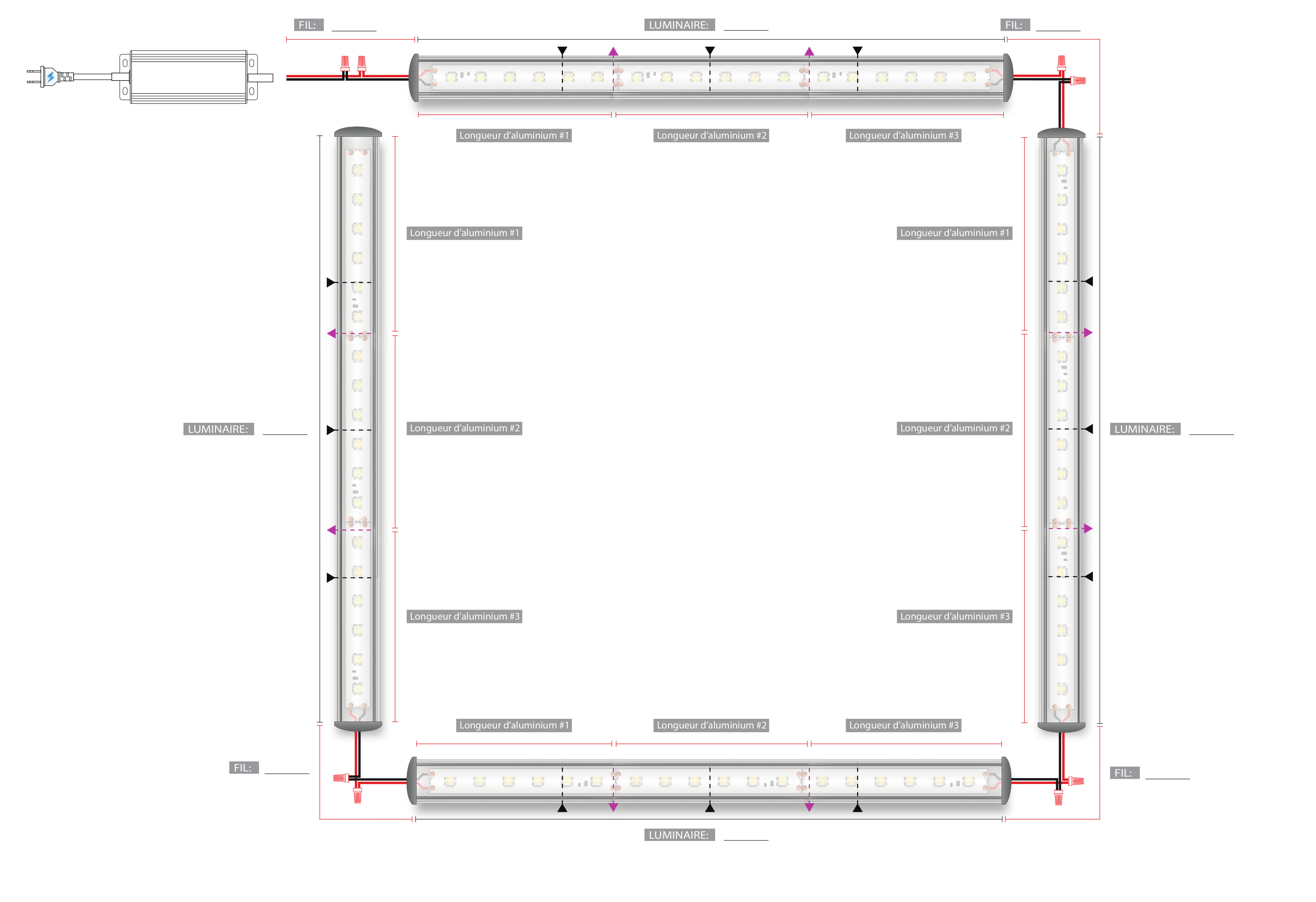
Nos croquis d'assemblage
Liste de nos croquis d'assemblage
(232)
Tous
Nombre de barres
1
2
3
4
5
6
Forme
Droite unique (non parallèle)
Avec des barres parallèles
Shape en L
Shape en U
Shape en rectangle
Lieu d'assemblage
Par LED123
Par le client
Avec profilé d'aluminium
Non
Oui
Type de conecteur
Entre le driver les barres
Aucun
Fil simple (marettes)
Raccords rapides
Entre les profilés d'aluminium d'une même ligne
Aucun
Fil simple (arettes)
Raccords rapides
Soudure des barres
Entre les lignes
Aucun
Fil simple (marettes)
Raccords rapides
Angle de 45°
Sortie de fil
Non
Oui
Filtrer
LAS-13
Consulter
LAS-14
Consulter
LAS-15
Consulter
LAS-16
Consulter
RM-1
Consulter
RM-2
Consulter
RM-3
Consulter
RM-4
Consulter
RM-5
Consulter
RM-6
Consulter
RM-7
Consulter
RM-8
Consulter
‹
1
2
...
10
11
12
13
14
15
16
...
19
20
›